7-11 St Leonards Road, Healesville
Land
EAST END DEVELOPMENT - COMMERCIAL PRECINCT
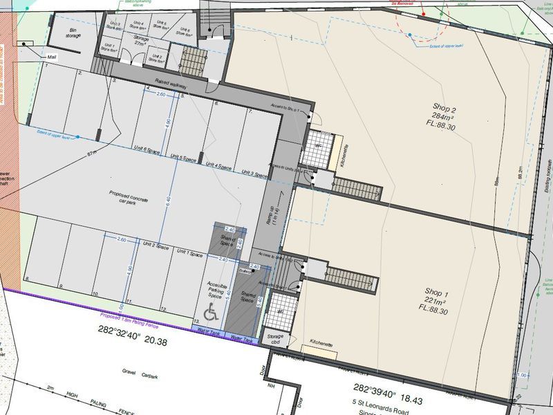
Land totalling 1020SQM in 3 titles.
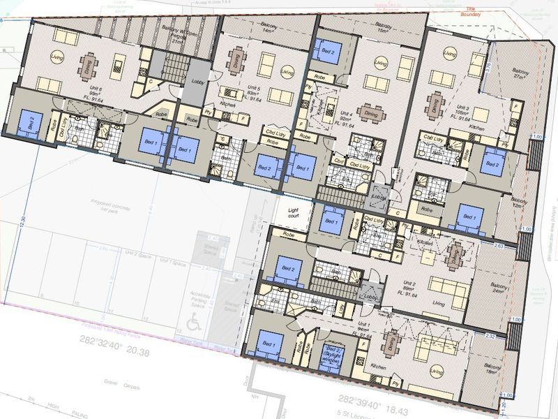
Plans & permits for 2 commercial fronts & 6 x 2 bedroom modern designed apartments.
Fantastic investment opportunity & development. Only metres to the Innocent Bystander & Beechworth Bakery.
Think about Air B&B or be an owner occupier & run your own business.
Endless opportunities! Call Anthony for full particulars.
Plans & permits for 2 commercial fronts & 6 x 2 bedroom modern designed apartments.
Fantastic investment opportunity & development. Only metres to the Innocent Bystander & Beechworth Bakery.
Think about Air B&B or be an owner occupier & run your own business.
Endless opportunities! Call Anthony for full particulars.
